Statybos dokumentacija parengiama šioms šalims:

House Plan: 1188 sq ft, 1 Story, 4 Beds, 2 Baths, Open Floor Plan, 1-Car Garage

Projektas
10622R
Baigta
Be parašo ir be antspaudo
SK Nėra
Pagrindiniai parametrai
110
Total Heated m²
2 + 0
Vonios kambariai + Tualetai
4 + 0
Miegamieji + Darbo kambarys
1
Automobiliai
Projekt architektoniczno-budowlany zawiera

opis techniczny

rzuty wszystkich kondygnacji

rzut więźby dachowej

rzut dachu

przekroje

elewacje

Projekt techniczny zawiera

projekt konstrukcji

projekt instalacji sanitarnych

projekt instalacji elektrycznej

projekt instalacji wentylacji mechanicznej

Do projektu dodajemy bezpłatnie

teczka do przechowywania dokumentacji projektowej

dziennik budowy

tablicę informacyjną na budowę - po otrzymaniu projektu domu i wypełnieniu ankiety

zgodę na wprowadzenie zmian do projektu

dokumentację projektową w plikach pdf

Norite ką nors pakeisti?

Šį namo projektą galima pritaikyti prie jūsų šeimos gyvenimo būdo ir sklypo ypatybių.

Šio projekto architektas nėra iš tavo šalies.

Jei norite pakeisti šį namo projektą, turite du pasirinkimus:

1. Pakeitimai, kuriuos atlieka originalus architektas: Dirbkite tiesiogiai su originaliu architektu, kad įsigytumėte pakeistą skaitmeninę koncepciją, tada perduokite ją savo vietiniam architektui, kad užsakytumėte statybos dokumentaciją.

2. Pakeitimai, kuriuos atlieka jūsų vietinis architektas: Įsigykite skaitmeninę koncepciją tokia, kokia ji yra, dirbkite su savo vietiniu architektu atlikdami pakeitimus ir tada tęskite statybos dokumentacijos užsakymą.

Vaizdo įrašas
Aukštų planai
Pirmas Aukštas
10622R - Pirmas Aukštas
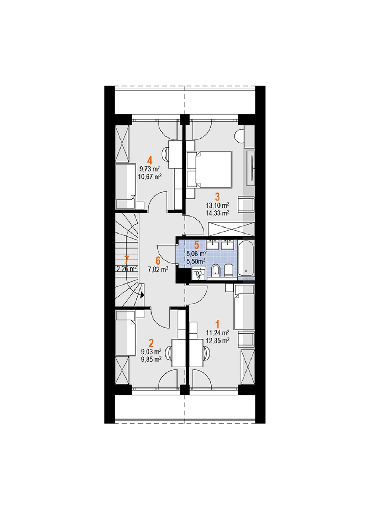
Antras Aukštas
10622R - Antras Aukštas
Visos specifikacijos
Plotas
Total Heated: 110 m²
Total Unheated: 18 m²
Basement: 0 m²
Bonus: 0 m²
Matmenys
Gylis 14.60 m
Plotis 7.00 m
Aukštis 8.71 m
Medžiagos
Wood-framed
Ceramic Block
Aerated Concrete Block
Fasado apdaila
Metal Panels
Kambariai
Vonios : 2
Tualetai : 0
Miegamieji : 4
Entry
Storage
Pamatas
Slab
Concrete Stem Wall
Architektūros stilius
Barn
Contemporary
European
Modern
Išorinės savybės
Balcony
Deck
Panoramic Windows
Large Windows
Floor-to-Ceiling Windows
Vidinės savybės
Second Floor Master
Split Bedrooms
Open Floor Plan
Virtuvė ir valgomasis
Breakfast Nook
Island
Garažas
9: 18 m²
Automobiliai: 1
Garage with Upstairs
Front Entry
Stogas
Stogo plotas: 1528.48m²
Gable
Ridge perpendicular to street
Stogo nuolydis : 12/12 (45°)
Architektas
Archeton Archeton Architektų biuras country with code pl Poland
country with code pl Poland
Lesser Poland Voivodeship, Kraków, ul. Cystersów 9 31-553
Projekto paketas

Namų projektas gali neatitikti jūsų šalies statybos taisyklių.

Architektas neparduoda skaitmeninės koncepcijos ir statybos dokumentacijos jūsų šaliai. Galite pažymėti žymimąjį laukelį „Suderinamos technologijos“ ir peržiūrėti „Projekto paketas“ architekto šaliai.