Statybos dokumentacija parengiama šioms šalims:
Projektas
23744R
Baigta
Be parašo ir be antspaudo
SK Nėra
Pagrindiniai parametrai
137
Bendrasis plotas m²
1 + 1
Vonios kambariai + Tualetai
3 + 0
Miegamieji + Darbo kambarys
1
Automobiliai
Norite ką nors pakeisti?

Šį namo projektą galima pritaikyti prie jūsų šeimos gyvenimo būdo ir sklypo ypatybių.

Šio projekto architektas nėra iš tavo šalies.

Jei norite pakeisti šį namo projektą, turite du pasirinkimus:

1. Pakeitimai, kuriuos atlieka originalus architektas: Dirbkite tiesiogiai su originaliu architektu, kad įsigytumėte pakeistą skaitmeninę koncepciją, tada perduokite ją savo vietiniam architektui, kad užsakytumėte statybos dokumentaciją.

2. Pakeitimai, kuriuos atlieka jūsų vietinis architektas: Įsigykite skaitmeninę koncepciją tokia, kokia ji yra, dirbkite su savo vietiniu architektu atlikdami pakeitimus ir tada tęskite statybos dokumentacijos užsakymą.

Aukštų planai
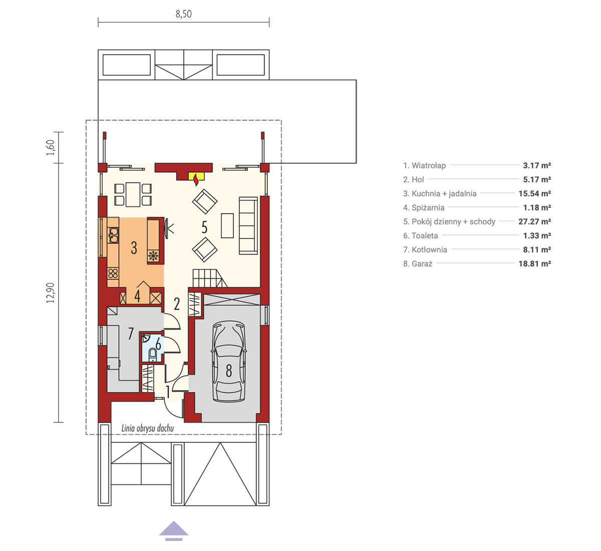
Pirmas Aukštas
23744R - Pirmas Aukštas
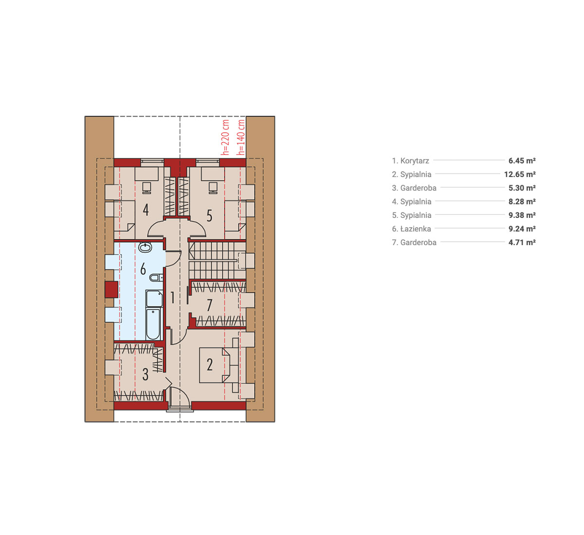
Antras Aukštas
23744R - Antras Aukštas
Visos specifikacijos
Plotas
Užstatymo plotas: 125 m²
Rūsys: 0 m²
Bendrasis plotas: 137 m²
Matmenys
Gylis 14.50 m
Plotis 8.50 m
Aukštis 8.78 m
Medžiagos
Keraminiai blokeliai
Akytbetonis
Fasado apdaila
Mediena
Dekoratyvinis Tinkas
Akmuo
Kambariai
Vonios : 1
Tualetai : 1
Miegamieji : 3
Katilinė
Tambūras
Drabužinė miegamajame
Pamatas
Plokštuminis
Iš blokelių
Architektūros stilius
Cottage
European
Lake
Kalnų
Tradicinis
Išorinės savybės
Dengta veranda gale
Medinė terasa
Langai nuo grindų iki lubų
Vidinės savybės
Židinys svetainėje
Antro aukšto pagrindinis miegamasis
Sugrupuoti miegamieji
Uždara virtuvė
Didelė svetainė (>25 m²)
Didelė virtuvė (>12 m²)
Virtuvė ir valgomasis
Sandėliukas
Valgomojo zona
Kampinis Langas
Garažas
9: 19 m²
Automobiliai: 1
Integruotas
Priekinis įvažiavimas
Stogas
Stogo plotas: 204.00m²
Dvišlaitis
Stoglangis
Kraigas statmenas gatvei
Stogo nuolydis : 45º (±2º)
Architektas
ARCHIPELAG ARCHIPELAG Architektų biuras country with code pl
country with code pl
ul. Aleksandra Ostrowskiego 9/318
Projekto paketas

Namų projektas gali neatitikti jūsų šalies statybos taisyklių.

Architektas neparduoda skaitmeninės koncepcijos ir statybos dokumentacijos jūsų šaliai. Galite pažymėti žymimąjį laukelį „Suderinamos technologijos“ ir peržiūrėti „Projekto paketas“ architekto šaliai.

Kiek kainuos statyba?
Sąmata
81
Ši sąmata pateiks tau statybos kainos įvertinimus pagal vietą ir statybines medžiagas.