Statybos dokumentacija parengiama šioms šalims:
Projektas
35041R
Baigta
Pasirašyta ir antspauduota
SK Nėra
Pagrindiniai parametrai
103
Bendrasis plotas m²
2 + 0
Vonios kambariai + Tualetai
3 + 1
Miegamieji + Darbo kambarys
0
Automobiliai
Projekt architektoniczno-budowlany zawiera

opis techniczny

rzuty wszystkich kondygnacji

rzut więźby dachowej

rzut dachu

przekroje

elewacje

Projekt techniczny zawiera

projekt konstrukcji

projekt instalacji sanitarnych

projekt instalacji elektrycznej

projekt instalacji wentylacji mechanicznej

Do projektu dodajemy bezpłatnie

teczka do przechowywania dokumentacji projektowej

dziennik budowy

tablicę informacyjną na budowę - po otrzymaniu projektu domu i wypełnieniu ankiety

zgodę na wprowadzenie zmian do projektu

dokumentację projektową w plikach pdf

Norite ką nors pakeisti?

Šį namo projektą galima pritaikyti prie jūsų šeimos gyvenimo būdo ir sklypo ypatybių.

Šio projekto architektas nėra iš tavo šalies.

Jei norite pakeisti šį namo projektą, turite du pasirinkimus:

1. Pakeitimai, kuriuos atlieka originalus architektas: Dirbkite tiesiogiai su originaliu architektu, kad įsigytumėte pakeistą skaitmeninę koncepciją, tada perduokite ją savo vietiniam architektui, kad užsakytumėte statybos dokumentaciją.

2. Pakeitimai, kuriuos atlieka jūsų vietinis architektas: Įsigykite skaitmeninę koncepciją tokia, kokia ji yra, dirbkite su savo vietiniu architektu atlikdami pakeitimus ir tada tęskite statybos dokumentacijos užsakymą.

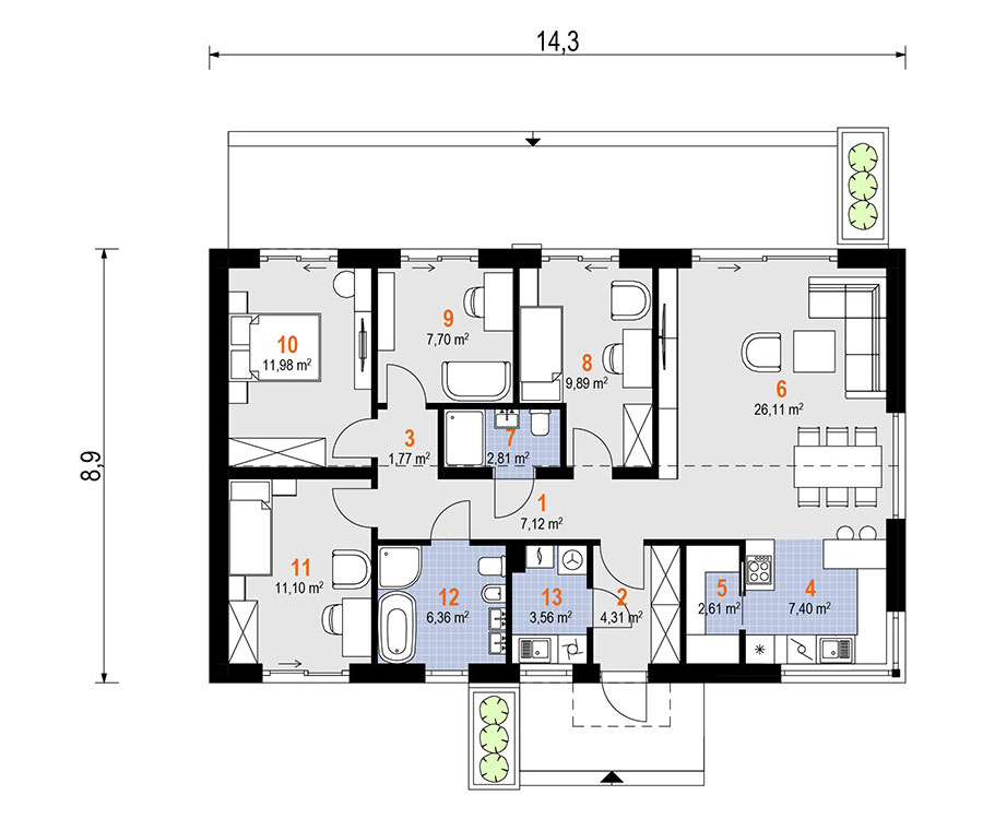
Aukštų planai
Pirmas Aukštas
35041R - Pirmas Aukštas
Visos specifikacijos
Plotas
Užstatymo plotas: 128 m²
Rūsys: 0 m²
Bendrasis plotas: 103 m²
Matmenys
Gylis 8.90 m
Plotis 14.30 m
Aukštis 6.17 m
Medžiagos
Karkasinis
Keraminiai blokeliai
Akytbetonis
Fasado apdaila
Mediena
Dekoratyvinis Tinkas
Kambariai
Vonios : 2
Tualetai : 0
Miegamieji : 3
Katilinė
Tambūras
Darbo kambarys
Pamatas
Plokštuminis
Juostinis
Architektūros stilius
Tvarto
Bungalas
Šiuolaikinis
European
Modernus
Pereinamasis
Išorinės savybės
Medinė terasa
Dideli Langai
Langai nuo grindų iki lubų
Vidinės savybės
Pirmo aukšto pagrindinis miegamasis
Sugrupuoti miegamieji
Atvira virtuvė
Didelė svetainė (>25 m²)
Virtuvė ir valgomasis
Sandėliukas
Virtuvės baras
Valgomojo zona
Kampinis Langas
Garažas
9: 0 m²
Automobiliai: 0
Stogas
Stogo plotas: 145.00m²
Dvišlaitis
Kraigas lygiagretus gatvei
Stogo nuolydis : 30º (±2º)
Architektas
Archeton Archeton Architektų biuras country with code pl
Projekto paketas

Namų projektas gali neatitikti jūsų šalies statybos taisyklių.

Architektas neparduoda skaitmeninės koncepcijos ir statybos dokumentacijos jūsų šaliai. Galite pažymėti žymimąjį laukelį „Suderinamos technologijos“ ir peržiūrėti „Projekto paketas“ architekto šaliai.

Kiek kainuos statyba?
Sąmata
60
Ši sąmata pateiks tau statybos kainos įvertinimus pagal vietą ir statybines medžiagas.