Statybos dokumentacija parengiama šioms šalims:

Single Level Home Plan with Hip Roof and 2-Car Garage

Projektas
50589R
Baigta
Be parašo ir be antspaudo
SK Nėra
Pagrindiniai parametrai
119
Total Heated m²
2 + 0
Vonios kambariai + Tualetai
3 + 0
Miegamieji + Darbo kambarys
2
Automobiliai
Projekt architektoniczno-budowlany zawiera

opis techniczny

rzuty wszystkich kondygnacji

rzut więźby dachowej

rzut dachu

przekroje

elewacje

Projekt techniczny zawiera

projekt konstrukcji

projekt instalacji sanitarnych

projekt instalacji elektrycznej

projekt instalacji wentylacji mechanicznej

Do projektu dodajemy bezpłatnie

teczka do przechowywania dokumentacji projektowej

dziennik budowy

tablicę informacyjną na budowę - po otrzymaniu projektu domu i wypełnieniu ankiety

zgodę na wprowadzenie zmian do projektu

dokumentację projektową w plikach pdf

Norite ką nors pakeisti?

Šį namo projektą galima pritaikyti prie jūsų šeimos gyvenimo būdo ir sklypo ypatybių.

Šio projekto architektas nėra iš tavo šalies.

Jei norite pakeisti šį namo projektą, turite du pasirinkimus:

1. Pakeitimai, kuriuos atlieka originalus architektas: Dirbkite tiesiogiai su originaliu architektu, kad įsigytumėte pakeistą skaitmeninę koncepciją, tada perduokite ją savo vietiniam architektui, kad užsakytumėte statybos dokumentaciją.

2. Pakeitimai, kuriuos atlieka jūsų vietinis architektas: Įsigykite skaitmeninę koncepciją tokia, kokia ji yra, dirbkite su savo vietiniu architektu atlikdami pakeitimus ir tada tęskite statybos dokumentacijos užsakymą.

Aukštų planai
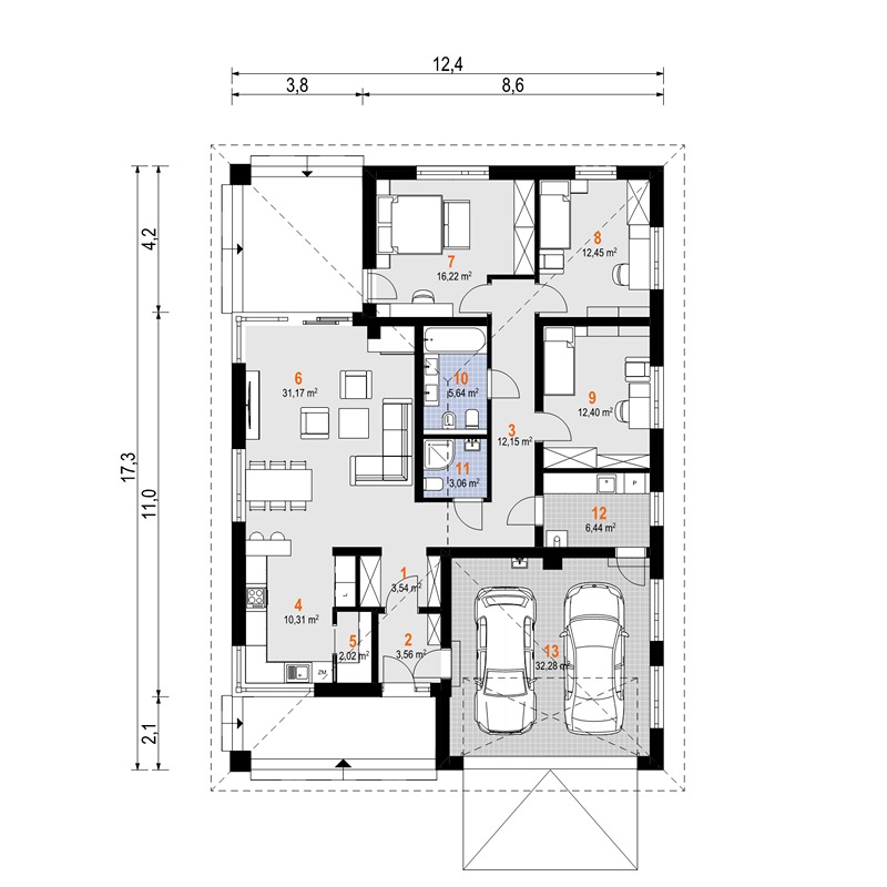
Pirmas Aukštas
50589R - Pirmas Aukštas
Visos specifikacijos
Plotas
Total Heated: 119 m²
Total Unheated: 32 m²
Basement: 0 m²
Bonus: 0 m²
Matmenys
Gylis 17.30 m
Plotis 12.40 m
Aukštis 7.42 m
Medžiagos
Ceramic Block
Aerated Concrete Block
Fasado apdaila
Wood
Stucco
Kambariai
Vonios : 2
Tualetai : 0
Miegamieji : 3
Furnace room
Laundry
Entry
Pamatas
Slab
Concrete Stem Wall
Architektūros stilius
Bungalow
European
Traditional
Išorinės savybės
Covered Front Porch
Covered Rear Porch
Corner Window
Vidinės savybės
Fireplace in Family Room
Main Floor Master
Clustered Bedrooms
Open Floor Plan
Large Family Room (>270 ft²)
Laundry in Furnace Room
Virtuvė ir valgomasis
Walk-in Pantry
Breakfast bar
Breakfast Nook
Corner Window
Garažas
9: 32 m²
Automobiliai: 2
Front Entry
Extension Forward
Stogas
Stogo plotas: 3121.53m²
Hip
Stogo nuolydis : 7/12 (30°)
Architektas
Archeton Archeton Architektų biuras country with code pl Poland
country with code pl Poland
Lesser Poland Voivodeship, Kraków, ul. Cystersów 9 31-553
Projekto paketas

Namų projektas gali neatitikti jūsų šalies statybos taisyklių.

Architektas neparduoda skaitmeninės koncepcijos ir statybos dokumentacijos jūsų šaliai. Galite pažymėti žymimąjį laukelį „Suderinamos technologijos“ ir peržiūrėti „Projekto paketas“ architekto šaliai.