Statybos dokumentacija parengiama šioms šalims:

1600 Sq Ft Flat Roof House Plan with Basement Garage

Projektas
53449R
Baigta
Be parašo ir be antspaudo
SK Nėra
Pagrindiniai parametrai
149
Total Heated m²
3 + 0
Vonios kambariai + Tualetai
3 + 1
Miegamieji + Darbo kambarys
2
Automobiliai
Projekt architektoniczno-budowlany zawiera

opis techniczny

rzuty wszystkich kondygnacji

rzut więźby dachowej

rzut dachu

przekroje

elewacje

Projekt techniczny zawiera

projekt konstrukcji

projekt instalacji sanitarnych

projekt instalacji elektrycznej

projekt instalacji wentylacji mechanicznej

Do projektu dodajemy bezpłatnie

teczka do przechowywania dokumentacji projektowej

dziennik budowy

tablicę informacyjną na budowę - po otrzymaniu projektu domu i wypełnieniu ankiety

zgodę na wprowadzenie zmian do projektu

dokumentację projektową w plikach pdf

Norite ką nors pakeisti?

Šį namo projektą galima pritaikyti prie jūsų šeimos gyvenimo būdo ir sklypo ypatybių.

Šio projekto architektas nėra iš tavo šalies.

Jei norite pakeisti šį namo projektą, turite du pasirinkimus:

1. Pakeitimai, kuriuos atlieka originalus architektas: Dirbkite tiesiogiai su originaliu architektu, kad įsigytumėte pakeistą skaitmeninę koncepciją, tada perduokite ją savo vietiniam architektui, kad užsakytumėte statybos dokumentaciją.

2. Pakeitimai, kuriuos atlieka jūsų vietinis architektas: Įsigykite skaitmeninę koncepciją tokia, kokia ji yra, dirbkite su savo vietiniu architektu atlikdami pakeitimus ir tada tęskite statybos dokumentacijos užsakymą.

Aukštų planai
Pirmas Aukštas
53449R - Pirmas Aukštas
Antras Aukštas
53449R - Antras Aukštas
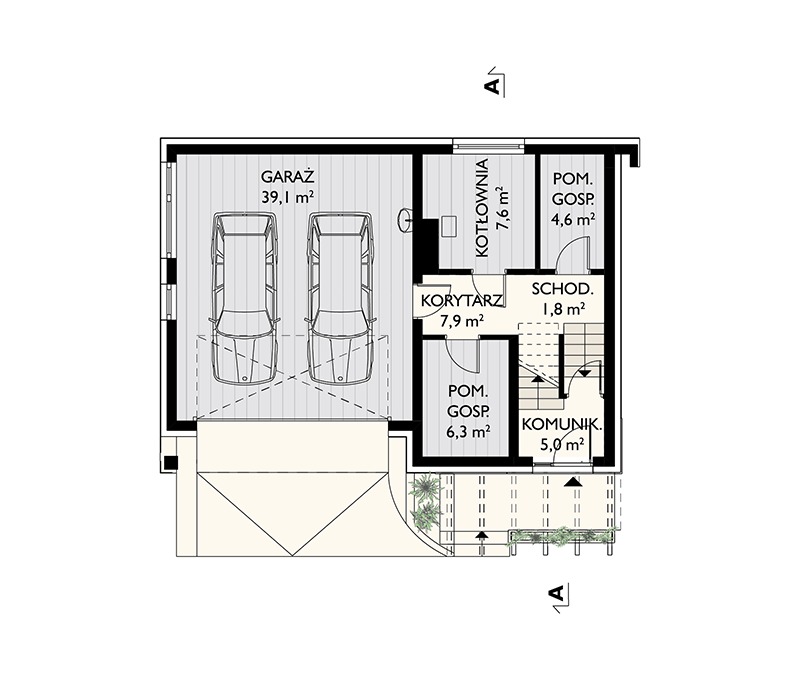
Rūsys
53449R - Rūsys
Visos specifikacijos
Plotas
Total Heated: 149 m²
Total Unheated: 72 m²
Basement: 72 m²
Bonus: 0 m²
Matmenys
Gylis 8.90 m
Plotis 12.10 m
Aukštis 8.90 m
Medžiagos
Wood-framed
Ceramic Block
Aerated Concrete Block
Fasado apdaila
Wood
Stucco
Kambariai
Vonios : 3
Tualetai : 0
Miegamieji : 3
Furnace room
Laundry
Entry
Home Office
Storage
Walk In Closet
Pamatas
Daylight Basement
Architektūros stilius
Contemporary
European
High-tech
Modern
Išorinės savybės
Balcony
Covered Front Porch
Covered Side Porch
Large Windows
Floor-to-Ceiling Windows
Vidinės savybės
Fireplace in Family Room
Second Floor Master
Clustered Bedrooms
Open Floor Plan
Large Family Room (>270 ft²)
Large Kitchen (>130 ft²)
Laundry in Furnace Room
Virtuvė ir valgomasis
Breakfast Nook
Island
Corner Window
Garažas
9: 0 m²
Automobiliai: 2
Drive Under
Front Entry
Stogas
Stogo plotas: 839.59m²
Flat
Stogo nuolydis : 1/12 (5°)
Architektas
Archeton Archeton Architektų biuras country with code pl Poland
country with code pl Poland
Lesser Poland Voivodeship, Kraków, ul. Cystersów 9 31-553
Projekto paketas

Namų projektas gali neatitikti jūsų šalies statybos taisyklių.

Architektas neparduoda skaitmeninės koncepcijos ir statybos dokumentacijos jūsų šaliai. Galite pažymėti žymimąjį laukelį „Suderinamos technologijos“ ir peržiūrėti „Projekto paketas“ architekto šaliai.