Statybos dokumentacija parengiama šioms šalims:

Small Barn Style Floor Plan with Clustered Bedrooms Upstairs

Projektas
69745R
Baigta
Pasirašyta ir antspauduota
SK Nėra
Pagrindiniai parametrai
106
Total Heated m²
1 + 1
Vonios kambariai + Tualetai
3 + 0
Miegamieji + Darbo kambarys
0
Automobiliai
Rysunki architektoniczne, konstrukcyjne i instalacyjne:

rzut fundamentów

rzuty parteru i kolejnych kondygnacji

rzut stropów i nadproży

rzut więźby dachowej

rzut dachu

przekroje

zestawienie stolarki drzwiowej i okiennej

detale konstrukcji

projekty instalacji

Opisy techniczne architektoniczno-konstrukcyjne oraz opisy wewnętrznych instalacji sanitarnych i elektrycznych:

opis techniczny części architektonicznej projektu

opis techniczny konstrukcji

opisy instalacji

Opisy i dokumentacja zawierają:

charakterystykę energetyczną budynku

charakterystykę ekologiczną

informację o planie b.i o.z.

analizę porównawczą dwóch źródeł energii

oświadczenia projektantów

liczne informacje formalno-prawne

Materiały pomocnicze:

obliczenia konstrukcyjne

zestawienie elementów więźby dachowej

zestawienie materiałów do podstawowych instalacji sanitarnych, grzewczych i gazowych

zestawienie stali do zbrojenia elementów żelbetowych

widoki więźby i stropów w 3D

Norite ką nors pakeisti?

Šį namo projektą galima pritaikyti prie jūsų šeimos gyvenimo būdo ir sklypo ypatybių.

Šio projekto architektas nėra iš tavo šalies.

Jei norite pakeisti šį namo projektą, turite du pasirinkimus:

1. Pakeitimai, kuriuos atlieka originalus architektas: Dirbkite tiesiogiai su originaliu architektu, kad įsigytumėte pakeistą skaitmeninę koncepciją, tada perduokite ją savo vietiniam architektui, kad užsakytumėte statybos dokumentaciją.

2. Pakeitimai, kuriuos atlieka jūsų vietinis architektas: Įsigykite skaitmeninę koncepciją tokia, kokia ji yra, dirbkite su savo vietiniu architektu atlikdami pakeitimus ir tada tęskite statybos dokumentacijos užsakymą.

Aukštų planai
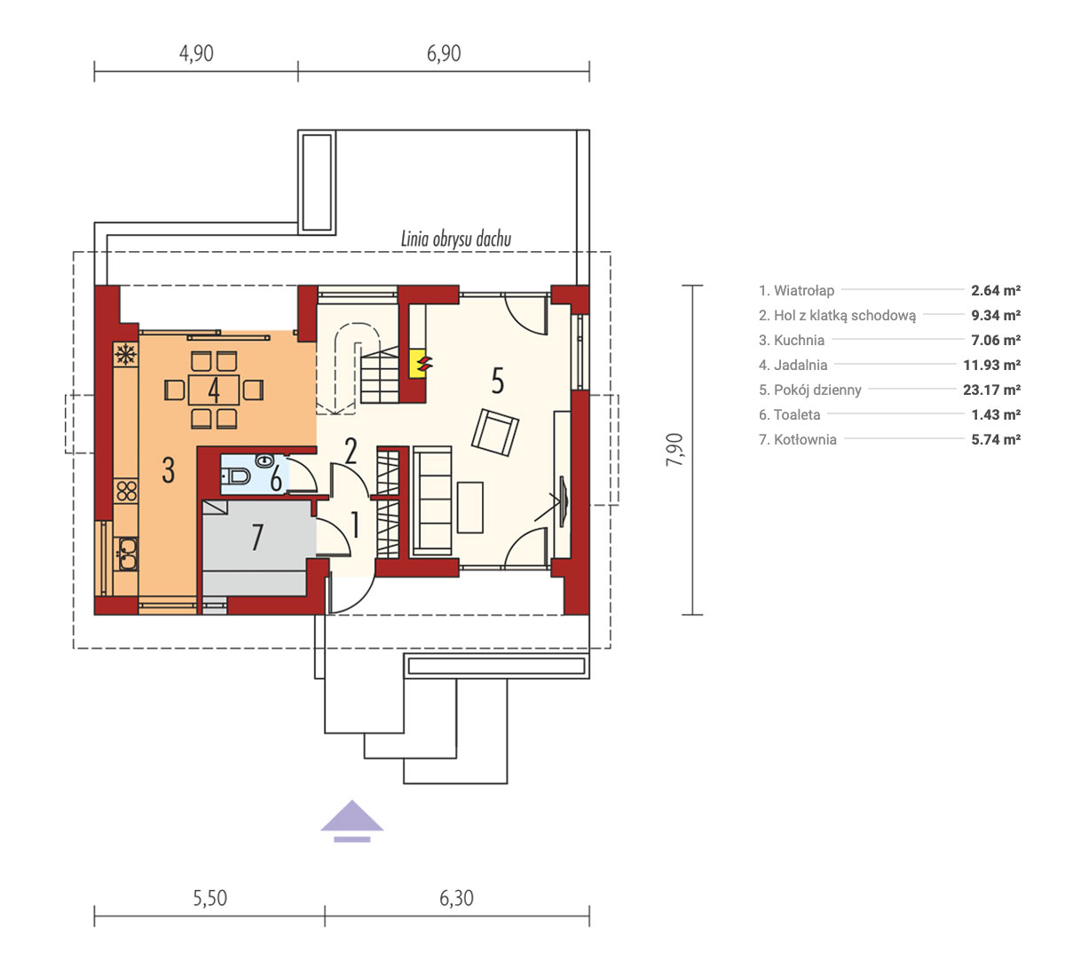
Pirmas Aukštas
69745R - Pirmas Aukštas
Antras Aukštas
69745R - Antras Aukštas
Visos specifikacijos
Plotas
Total Heated: 106 m²
Total Unheated: 0 m²
Basement: 0 m²
Bonus: 0 m²
Matmenys
Gylis 7.90 m
Plotis 11.80 m
Aukštis 8.19 m
Medžiagos
Ceramic Block
Aerated Concrete Block
Fasado apdaila
Wood
Stucco
Kambariai
Vonios : 1
Tualetai : 1
Miegamieji : 3
Furnace room
Laundry
Entry
Walk In Closet
Pamatas
Slab
Concrete Stem Wall
Architektūros stilius
Cottage
European
Traditional
Išorinės savybės
Balcony
Deck
Large Windows
Floor-to-Ceiling Windows
Vidinės savybės
Laundry Second Floor
Fireplace in Family Room
Second Floor Master
Clustered Bedrooms
Closed Floor Plan
Large Kitchen (>130 ft²)
Virtuvė ir valgomasis
Breakfast Nook
Corner Window
Garažas
9: 0 m²
Automobiliai: 0
Stogas
Stogo plotas: 1668.41m²
Gable
Skylight
Ridge parallel to street
Stogo nuolydis : 12/12 (45°)
Architektas
ARCHIPELAG ARCHIPELAG Architektų biuras country with code pl Poland
country with code pl Poland
Lower Silesian Voivodeship, Wrocław, ul. Mariana Smoluchowskiego 56/3
Projekto paketas

Namų projektas gali neatitikti jūsų šalies statybos taisyklių.

Architektas neparduoda skaitmeninės koncepcijos ir statybos dokumentacijos jūsų šaliai. Galite pažymėti žymimąjį laukelį „Suderinamos technologijos“ ir peržiūrėti „Projekto paketas“ architekto šaliai.

Kiek kainuos statyba?
Sąmata
$ 95
Ši sąmata pateiks tau statybos kainos įvertinimus pagal vietą ir statybines medžiagas.