Statybos dokumentacija parengiama šioms šalims:
Projektas
12222R
Baigta
Pasirašyta ir antspauduota
SK Prieinamas
Pagrindiniai parametrai
241
Bendrasis plotas m²
3 + 0
Vonios kambariai + Tualetai
3 + 1
Miegamieji + Darbo kambarys
2
Automobiliai
111

222

Norite ką nors pakeisti?

Šį namo projektą galima pritaikyti prie jūsų šeimos gyvenimo būdo ir sklypo ypatybių.

Šio projekto architektas nėra iš tavo šalies.

Jei norite pakeisti šį namo projektą, turite du pasirinkimus:

1. Pakeitimai, kuriuos atlieka originalus architektas: Dirbkite tiesiogiai su originaliu architektu, kad įsigytumėte pakeistą skaitmeninę koncepciją, tada perduokite ją savo vietiniam architektui, kad užsakytumėte statybos dokumentaciją.

2. Pakeitimai, kuriuos atlieka jūsų vietinis architektas: Įsigykite skaitmeninę koncepciją tokia, kokia ji yra, dirbkite su savo vietiniu architektu atlikdami pakeitimus ir tada tęskite statybos dokumentacijos užsakymą.

Aukštų planai
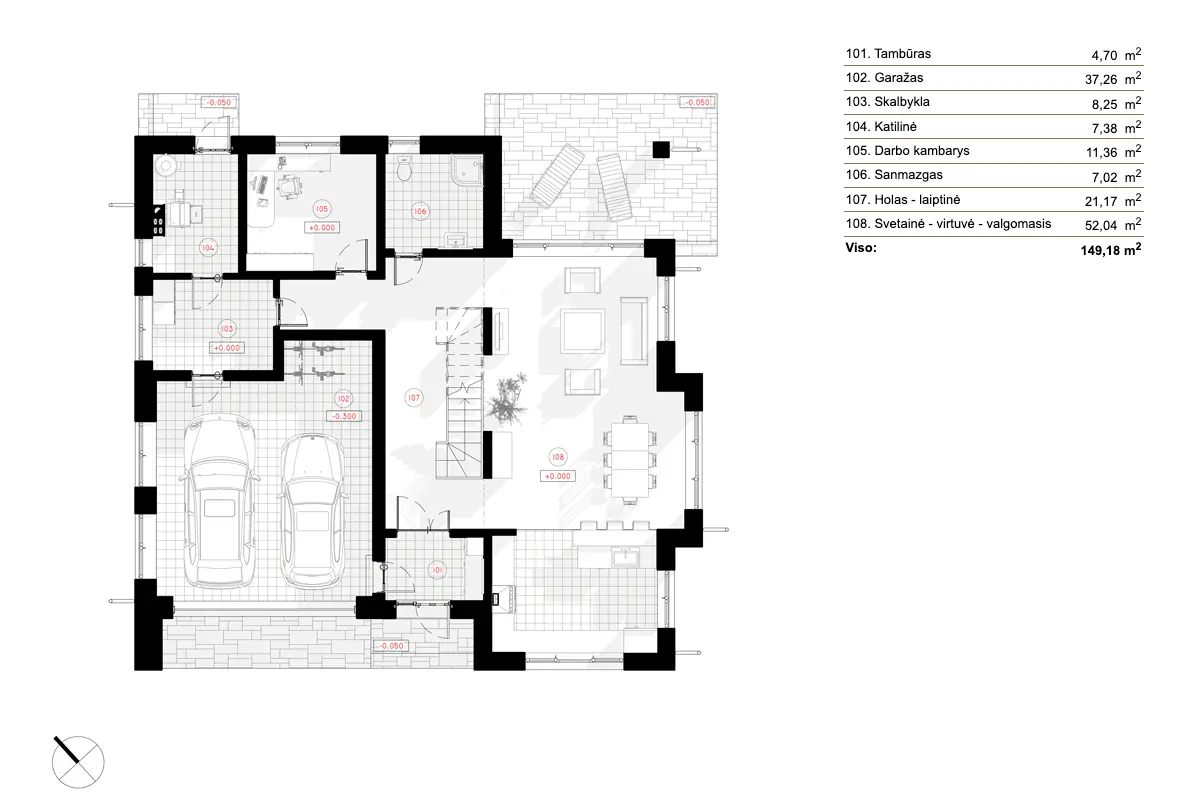
Pirmas Aukštas
12222R - Pirmas Aukštas
Antras Aukštas
12222R - Antras Aukštas
Visos specifikacijos
Plotas
Pirmas aukštas (be garažo): 112 m²
Antras aukštas: 92 m²
Trečias aukštas: 0 m²
Rūsys: 0 m²
Gyvenamasis plotas: 113 m²
Užstatymo plotas: 190 m²
Bendrasis plotas: 241 m²
Matmenys
Gylis 14.46 m
Plotis 15.37 m
Aukštis 8.74 m
Medžiagos
Karkasinis
Keraminiai blokeliai
Akytbetonis
Silikatinis blokelis
Fasado apdaila
Klinkerio plytelės
Mediena
Kambariai
Vonios : 3
Tualetai : 0
Miegamieji : 3
Katilinė
Skalbykla
Tambūras
Darbo kambarys
Drabužinė miegamajame
Pamatas
Gręžtinis
Plokštuminis
Iš blokelių
Juostinis
Architektūros stilius
European
Tradicinis
Išorinės savybės
Balkonas
Dengta veranda gale
Vidinės savybės
Skalbykla pirmame aukšte
Antro aukšto pagrindinis miegamasis
Pirmo aukšto erdvė
Antresolė
Atvira virtuvė
Didelė svetainė (>25 m²)
Didelė virtuvė (>12 m²)
Virtuvė ir valgomasis
Virtuvės baras
Valgomojo zona
Garažas
9: 37 m²
Automobiliai: 2
Integruotas
Priekinis įvažiavimas
Stogas
Stogo plotas: 0.00m²
Dvišlaitis
Dvigubas Vienšlaitis
Kraigas statmenas gatvei
Stogo nuolydis : 14º (±2º)
Architektas
NPS projektai NPS projektai Architektų biuras country with code lt Lithuania
country with code lt Lithuania
Šiauliai City Municipality, Šiauliai, Tilžės g. 151 (II aukštas)
Projekto paketas

Namų projektas gali neatitikti jūsų šalies statybos taisyklių.

Norėdami užtikrinti, kad namo projektas atitiktų jūsų šalies statybos taisykles, turite įsigyti skaitmeninę koncepciją iš projekto autoriaus ir pasirinkti žemiau vietinį architektą statybos dokumentacijai parengti.

Skaitmeninė koncepcija plan_plan_cad_owner_country_desc
$1260
Tarpinė suma