Statybos dokumentacija parengiama šioms šalims:
Projektas
22635R
Baigta
Pasirašyta ir antspauduota
SK Prieinamas
Pagrindiniai parametrai
172
Bendrasis plotas m²
2 + 0
Vonios kambariai + Tualetai
3 + 1
Miegamieji + Darbo kambarys
1
Automobiliai
111

222

Norite ką nors pakeisti?

Šį namo projektą galima pritaikyti prie jūsų šeimos gyvenimo būdo ir sklypo ypatybių.

Šio projekto architektas nėra iš tavo šalies.

Jei norite pakeisti šį namo projektą, turite du pasirinkimus:

1. Pakeitimai, kuriuos atlieka originalus architektas: Dirbkite tiesiogiai su originaliu architektu, kad įsigytumėte pakeistą skaitmeninę koncepciją, tada perduokite ją savo vietiniam architektui, kad užsakytumėte statybos dokumentaciją.

2. Pakeitimai, kuriuos atlieka jūsų vietinis architektas: Įsigykite skaitmeninę koncepciją tokia, kokia ji yra, dirbkite su savo vietiniu architektu atlikdami pakeitimus ir tada tęskite statybos dokumentacijos užsakymą.

Aukštų planai
Pirmas Aukštas
22635R - Pirmas Aukštas
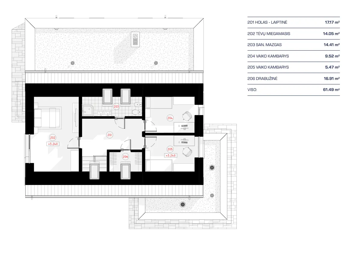
Antras Aukštas
22635R - Antras Aukštas
Visos specifikacijos
Plotas
Pirmas aukštas (be garažo): 89 m²
Antras aukštas: 61 m²
Trečias aukštas: 0 m²
Rūsys: 0 m²
Gyvenamasis plotas: 100 m²
Užstatymo plotas: 193 m²
Bendrasis plotas: 172 m²
Matmenys
Gylis 14.95 m
Plotis 14.87 m
Aukštis 8.50 m
Medžiagos
Karkasinis
Keraminiai blokeliai
Akytbetonis
Silikatinis blokelis
Fasado apdaila
Mediena
Dekoratyvinis Tinkas
Metalinės Plokštės
Kambariai
Vonios : 2
Tualetai : 0
Miegamieji : 3
Katilinė
Tambūras
Darbo kambarys
Sandėliukas
Pamatas
Gręžtinis
Plokštuminis
Iš blokelių
Juostinis
Architektūros stilius
Tvarto
Šiuolaikinis
European
Modernus
Skandinaviškas
Išorinės savybės
Dengta veranda gale
Dideli Langai
Langai nuo grindų iki lubų
Vidinės savybės
Antro aukšto pagrindinis miegamasis
Atskiri miegamieji
Atvira virtuvė
Virtuvė ir valgomasis
Valgomojo zona
Salelė
Garažas
9: 21 m²
Automobiliai: 1
Pristatytas
Priekinis įvažiavimas
Stogas
Stogo plotas: 0.00m²
Dvišlaitis
Plokščias
Stoglangis
Kraigas statmenas gatvei
Stogo nuolydis : 40º (±2º)
Architektas
NP5 NP5 Projektavimo ir statybos įmonė country with code lt Lithuania
country with code lt Lithuania
Šiauliai City Municipality, Šiauliai, Kreivoji g. 7
Projekto paketas

Namų projektas gali neatitikti jūsų šalies statybos taisyklių.

Norėdami užtikrinti, kad namo projektas atitiktų jūsų šalies statybos taisykles, turite įsigyti skaitmeninę koncepciją iš projekto autoriaus ir pasirinkti žemiau vietinį architektą statybos dokumentacijai parengti.

Skaitmeninė koncepcija plan_plan_cad_owner_country_desc
$1500
Tarpinė suma