Statybos dokumentacija parengiama šioms šalims:
Projektas
31185R
Baigta
Pasirašyta ir antspauduota
SK Prieinamas
Pagrindiniai parametrai
191
Bendrasis plotas m²
2 + 0
Vonios kambariai + Tualetai
3 + 1
Miegamieji + Darbo kambarys
0
Automobiliai
111

222

Norite ką nors pakeisti?

Šį namo projektą galima pritaikyti prie jūsų šeimos gyvenimo būdo ir sklypo ypatybių.

Šio projekto architektas nėra iš tavo šalies.

Jei norite pakeisti šį namo projektą, turite du pasirinkimus:

1. Pakeitimai, kuriuos atlieka originalus architektas: Dirbkite tiesiogiai su originaliu architektu, kad įsigytumėte pakeistą skaitmeninę koncepciją, tada perduokite ją savo vietiniam architektui, kad užsakytumėte statybos dokumentaciją.

2. Pakeitimai, kuriuos atlieka jūsų vietinis architektas: Įsigykite skaitmeninę koncepciją tokia, kokia ji yra, dirbkite su savo vietiniu architektu atlikdami pakeitimus ir tada tęskite statybos dokumentacijos užsakymą.

Aukštų planai
Pirmas Aukštas
31185R - Pirmas Aukštas
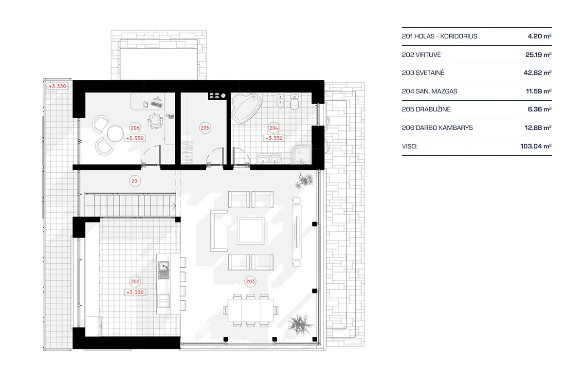
Antras Aukštas
31185R - Antras Aukštas
Visos specifikacijos
Plotas
Pirmas aukštas (be garažo): 88 m²
Antras aukštas: 103 m²
Trečias aukštas: 0 m²
Rūsys: 0 m²
Gyvenamasis plotas: 137 m²
Užstatymo plotas: 145 m²
Bendrasis plotas: 191 m²
Matmenys
Gylis 13.22 m
Plotis 12.27 m
Aukštis 7.91 m
Medžiagos
Karkasinis
Keraminiai blokeliai
Akytbetonis
Silikatinis blokelis
Fasado apdaila
Dekoratyvinis Tinkas
Kambariai
Vonios : 2
Tualetai : 0
Miegamieji : 3
Katilinė
Tambūras
Darbo kambarys
Pamatas
Gręžtinis
Plokštuminis
Iš blokelių
Juostinis
Architektūros stilius
Šiuolaikinis
European
Minimalistinis
Modernus
Loft
Išorinės savybės
Balkonas
Medinė terasa
Kampinis Langas
Panoraminiai Langai
Dideli Langai
Langai nuo grindų iki lubų
Vidinės savybės
Pirmo aukšto pagrindinis miegamasis
Sugrupuoti miegamieji
Atvira virtuvė
Didelė svetainė (>25 m²)
Didelė virtuvė (>12 m²)
Skalbykla katilinėje
Virtuvė ir valgomasis
Salelė
Garažas
9: 0 m²
Automobiliai: 0
Stogas
Stogo plotas: 0.00m²
Plokščias
Architektas
NP5 NP5 Projektavimo ir statybos įmonė country with code lt Lithuania
country with code lt Lithuania
Šiauliai City Municipality, Šiauliai, Kreivoji g. 7
Projekto paketas

Namų projektas gali neatitikti jūsų šalies statybos taisyklių.

Norėdami užtikrinti, kad namo projektas atitiktų jūsų šalies statybos taisykles, turite įsigyti skaitmeninę koncepciją iš projekto autoriaus ir pasirinkti žemiau vietinį architektą statybos dokumentacijai parengti.

Skaitmeninė koncepcija plan_plan_cad_owner_country_desc
$1500
Tarpinė suma