Statybos dokumentacija parengiama šioms šalims:
Projektas
32957R
Baigta
Pasirašyta ir antspauduota
SK Prieinamas
Pagrindiniai parametrai
191
Bendrasis plotas m²
2 + 0
Vonios kambariai + Tualetai
3 + 1
Miegamieji + Darbo kambarys
2
Automobiliai
111

222

Norite ką nors pakeisti?

Šį namo projektą galima pritaikyti prie jūsų šeimos gyvenimo būdo ir sklypo ypatybių.

Šio projekto architektas nėra iš tavo šalies.

Jei norite pakeisti šį namo projektą, turite du pasirinkimus:

1. Pakeitimai, kuriuos atlieka originalus architektas: Dirbkite tiesiogiai su originaliu architektu, kad įsigytumėte pakeistą skaitmeninę koncepciją, tada perduokite ją savo vietiniam architektui, kad užsakytumėte statybos dokumentaciją.

2. Pakeitimai, kuriuos atlieka jūsų vietinis architektas: Įsigykite skaitmeninę koncepciją tokia, kokia ji yra, dirbkite su savo vietiniu architektu atlikdami pakeitimus ir tada tęskite statybos dokumentacijos užsakymą.

Aukštų planai
Pirmas Aukštas
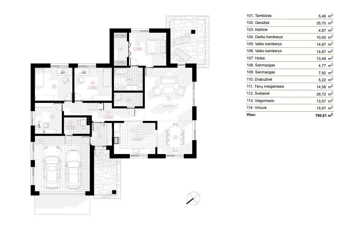
32957R - Pirmas Aukštas
Visos specifikacijos
Plotas
Pirmas aukštas (be garažo): 155 m²
Antras aukštas: 0 m²
Trečias aukštas: 0 m²
Rūsys: 0 m²
Gyvenamasis plotas: 113 m²
Užstatymo plotas: 231 m²
Bendrasis plotas: 191 m²
Matmenys
Gylis 17.92 m
Plotis 17.78 m
Aukštis 5.90 m
Medžiagos
Keraminiai blokeliai
Akytbetonis
Silikatinis blokelis
Fasado apdaila
Klinkerio plytelės
Kambariai
Vonios : 2
Tualetai : 0
Miegamieji : 3
Katilinė
Tambūras
Darbo kambarys
Drabužinė miegamajame
Pamatas
Gręžtinis
Plokštuminis
Iš blokelių
Juostinis
Architektūros stilius
Bungalas
European
Tradicinis
Išorinės savybės
Dengta veranda gale
Dideli Langai
Langai nuo grindų iki lubų
Vidinės savybės
Pirmo aukšto pagrindinis miegamasis
Atskiri miegamieji
Uždara virtuvė
Didelė svetainė (>25 m²)
Didelė virtuvė (>12 m²)
Virtuvė ir valgomasis
Valgomojo zona
Garažas
9: 36 m²
Automobiliai: 2
Priekinis įvažiavimas
Pratęstas į priekį
Stogas
Stogo plotas: 0.00m²
Daugiašlaitis
Stogo nuolydis : 26º (±2º)
Architektas
NPS projektai NPS projektai Architektų biuras country with code lt Lithuania
country with code lt Lithuania
Šiauliai City Municipality, Šiauliai, Tilžės g. 151 (II aukštas)
Projekto paketas

Namų projektas gali neatitikti jūsų šalies statybos taisyklių.

Norėdami užtikrinti, kad namo projektas atitiktų jūsų šalies statybos taisykles, turite įsigyti skaitmeninę koncepciją iš projekto autoriaus ir pasirinkti žemiau vietinį architektą statybos dokumentacijai parengti.

Skaitmeninė koncepcija plan_plan_cad_owner_country_desc
$1260
Tarpinė suma