Statybos dokumentacija parengiama šioms šalims:
Projektas
64824R
Baigta
Pasirašyta ir antspauduota
SK Prieinamas
Pagrindiniai parametrai
157
Bendrasis plotas m²
2 + 0
Vonios kambariai + Tualetai
3 + 0
Miegamieji + Darbo kambarys
1
Automobiliai
111

222

Norite ką nors pakeisti?

Šį namo projektą galima pritaikyti prie jūsų šeimos gyvenimo būdo ir sklypo ypatybių.

Šio projekto architektas nėra iš tavo šalies.

Jei norite pakeisti šį namo projektą, turite du pasirinkimus:

1. Pakeitimai, kuriuos atlieka originalus architektas: Dirbkite tiesiogiai su originaliu architektu, kad įsigytumėte pakeistą skaitmeninę koncepciją, tada perduokite ją savo vietiniam architektui, kad užsakytumėte statybos dokumentaciją.

2. Pakeitimai, kuriuos atlieka jūsų vietinis architektas: Įsigykite skaitmeninę koncepciją tokia, kokia ji yra, dirbkite su savo vietiniu architektu atlikdami pakeitimus ir tada tęskite statybos dokumentacijos užsakymą.

Aukštų planai
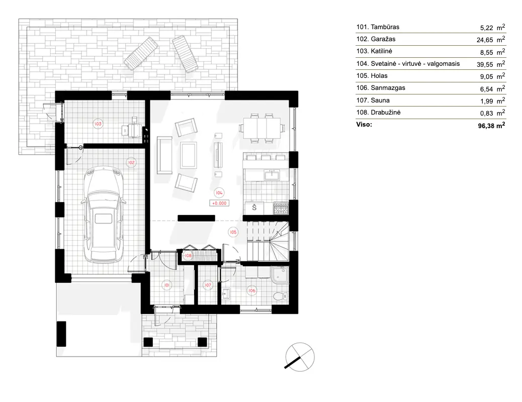
Pirmas Aukštas
64824R - Pirmas Aukštas
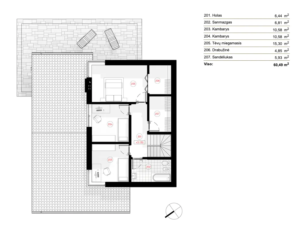
Antras Aukštas
64824R - Antras Aukštas
Visos specifikacijos
Plotas
Pirmas aukštas (be garažo): 72 m²
Antras aukštas: 60 m²
Trečias aukštas: 0 m²
Rūsys: 0 m²
Gyvenamasis plotas: 76 m²
Užstatymo plotas: 123 m²
Bendrasis plotas: 157 m²
Matmenys
Gylis 12.49 m
Plotis 11.85 m
Aukštis 7.34 m
Medžiagos
Karkasinis
Keraminiai blokeliai
Akytbetonis
Silikatinis blokelis
Fasado apdaila
Klinkerio plytelės
Mediena
Dekoratyvinis Tinkas
Kambariai
Vonios : 2
Tualetai : 0
Miegamieji : 3
Katilinė
Skalbykla
Tambūras
Pirtis
Drabužinė miegamajame
Pamatas
Gręžtinis
Plokštuminis
Iš blokelių
Juostinis
Architektūros stilius
European
Tradicinis
Išorinės savybės
Medinė terasa
Kampinis Langas
Vidinės savybės
Skalbykla pirmame aukšte
Antro aukšto pagrindinis miegamasis
Sugrupuoti miegamieji
Atvira virtuvė
Didelė svetainė (>25 m²)
Virtuvė ir valgomasis
Virtuvės baras
Valgomojo zona
Salelė
Garažas
9: 25 m²
Automobiliai: 1
Pristatytas
Priekinis įvažiavimas
Stogas
Stogo plotas: 0.00m²
Vienšlaitis
Stogo nuolydis : 9.5º (±2º)
Architektas
NPS projektai NPS projektai Architektų biuras country with code lt Lithuania
country with code lt Lithuania
Šiauliai City Municipality, Šiauliai, Tilžės g. 151 (II aukštas)
Projekto paketas

Namų projektas gali neatitikti jūsų šalies statybos taisyklių.

Norėdami užtikrinti, kad namo projektas atitiktų jūsų šalies statybos taisykles, turite įsigyti skaitmeninę koncepciją iš projekto autoriaus ir pasirinkti žemiau vietinį architektą statybos dokumentacijai parengti.

Skaitmeninė koncepcija plan_plan_cad_owner_country_desc
$1260
Tarpinė suma