Statybos dokumentacija parengiama šioms šalims:
Projektas
87960R
Baigta
Pasirašyta ir antspauduota
SK Prieinamas
Pagrindiniai parametrai
120
Bendrasis plotas m²
1 + 0
Vonios kambariai + Tualetai
2 + 0
Miegamieji + Darbo kambarys
1
Automobiliai
111

222

Norite ką nors pakeisti?

Šį namo projektą galima pritaikyti prie jūsų šeimos gyvenimo būdo ir sklypo ypatybių.

Šio projekto architektas nėra iš tavo šalies.

Jei norite pakeisti šį namo projektą, turite du pasirinkimus:

1. Pakeitimai, kuriuos atlieka originalus architektas: Dirbkite tiesiogiai su originaliu architektu, kad įsigytumėte pakeistą skaitmeninę koncepciją, tada perduokite ją savo vietiniam architektui, kad užsakytumėte statybos dokumentaciją.

2. Pakeitimai, kuriuos atlieka jūsų vietinis architektas: Įsigykite skaitmeninę koncepciją tokia, kokia ji yra, dirbkite su savo vietiniu architektu atlikdami pakeitimus ir tada tęskite statybos dokumentacijos užsakymą.

Aukštų planai
Pirmas Aukštas
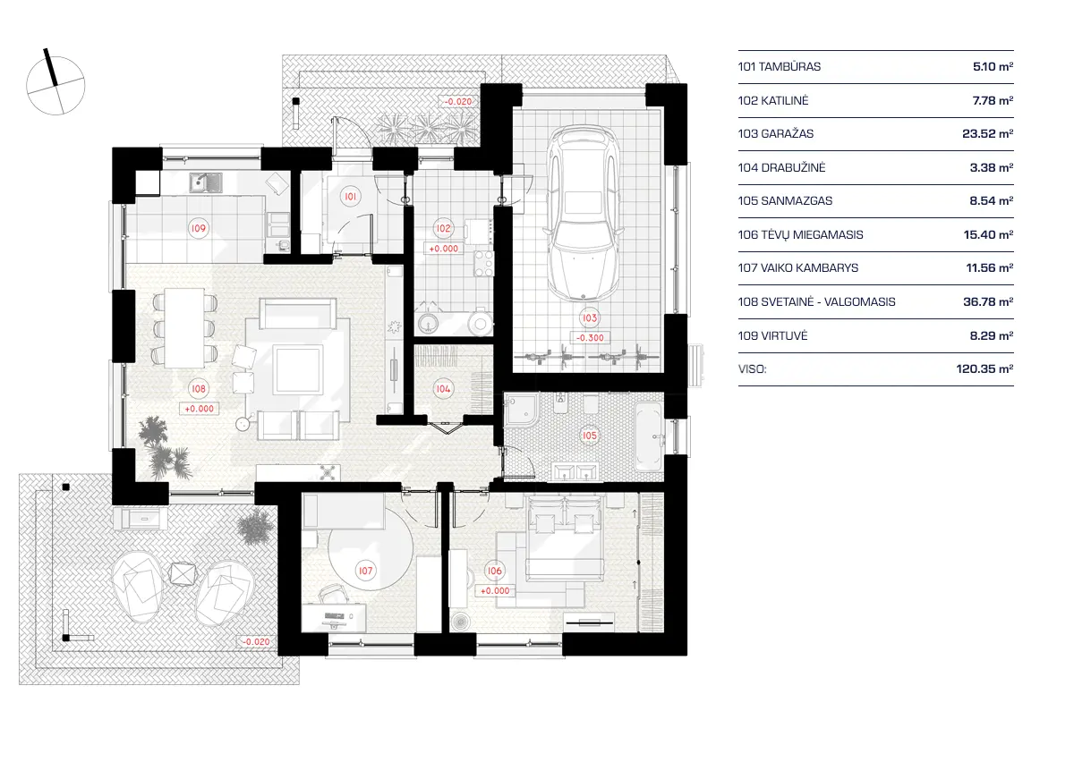
87960R - Pirmas Aukštas
Visos specifikacijos
Plotas
Pirmas aukštas (be garažo): 97 m²
Antras aukštas: 0 m²
Trečias aukštas: 0 m²
Rūsys: 0 m²
Gyvenamasis plotas: 72 m²
Užstatymo plotas: 188 m²
Bendrasis plotas: 120 m²
Matmenys
Gylis 13.64 m
Plotis 14.88 m
Aukštis 4.93 m
Medžiagos
Karkasinis
Keraminiai blokeliai
Akytbetonis
Silikatinis blokelis
Fasado apdaila
Klinkerio plytelės
Dekoratyvinis Tinkas
Kambariai
Vonios : 1
Tualetai : 0
Miegamieji : 2
Katilinė
Tambūras
Pamatas
Gręžtinis
Plokštuminis
Iš blokelių
Juostinis
Architektūros stilius
Bungalas
Šiuolaikinis
European
Minimalistinis
Modernus
Išorinės savybės
Dengta veranda gale
Dideli Langai
Langai nuo grindų iki lubų
Vidinės savybės
Sugrupuoti miegamieji
Atvira virtuvė
Didelė svetainė (>25 m²)
Virtuvė ir valgomasis
Valgomojo zona
Garažas
9: 24 m²
Automobiliai: 1
Priekinis įvažiavimas
Stogas
Stogo plotas: 0.00m²
Plokščias
Architektas
NP5 NP5 Projektavimo ir statybos įmonė country with code lt Lithuania
country with code lt Lithuania
Šiauliai City Municipality, Šiauliai, Kreivoji g. 7
Projekto paketas

Namų projektas gali neatitikti jūsų šalies statybos taisyklių.

Norėdami užtikrinti, kad namo projektas atitiktų jūsų šalies statybos taisykles, turite įsigyti skaitmeninę koncepciją iš projekto autoriaus ir pasirinkti žemiau vietinį architektą statybos dokumentacijai parengti.

Skaitmeninė koncepcija plan_plan_cad_owner_country_desc
$1500
Tarpinė suma