Statybos dokumentacija parengiama šioms šalims:
Projektas
91452R
Baigta
Pasirašyta ir antspauduota
SK Prieinamas
Pagrindiniai parametrai
179
Bendrasis plotas m²
2 + 0
Vonios kambariai + Tualetai
3 + 0
Miegamieji + Darbo kambarys
2
Automobiliai
111

222

Norite ką nors pakeisti?

Šį namo projektą galima pritaikyti prie jūsų šeimos gyvenimo būdo ir sklypo ypatybių.

Šio projekto architektas nėra iš tavo šalies.

Jei norite pakeisti šį namo projektą, turite du pasirinkimus:

1. Pakeitimai, kuriuos atlieka originalus architektas: Dirbkite tiesiogiai su originaliu architektu, kad įsigytumėte pakeistą skaitmeninę koncepciją, tada perduokite ją savo vietiniam architektui, kad užsakytumėte statybos dokumentaciją.

2. Pakeitimai, kuriuos atlieka jūsų vietinis architektas: Įsigykite skaitmeninę koncepciją tokia, kokia ji yra, dirbkite su savo vietiniu architektu atlikdami pakeitimus ir tada tęskite statybos dokumentacijos užsakymą.

Aukštų planai
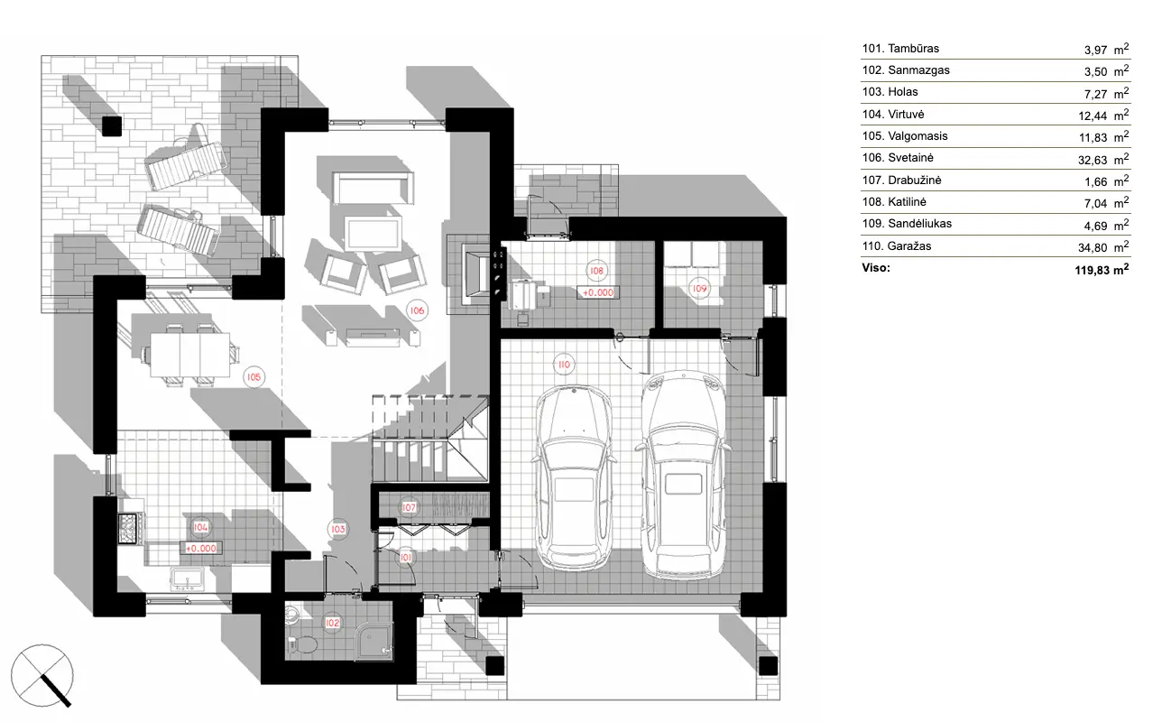
Pirmas Aukštas
91452R - Pirmas Aukštas
Antras Aukštas
91452R - Antras Aukštas
Visos specifikacijos
Plotas
Pirmas aukštas (be garažo): 85 m²
Antras aukštas: 59 m²
Trečias aukštas: 0 m²
Rūsys: 0 m²
Gyvenamasis plotas: 100 m²
Užstatymo plotas: 202 m²
Bendrasis plotas: 179 m²
Matmenys
Gylis 13.04 m
Plotis 15.70 m
Aukštis 8.15 m
Medžiagos
Keraminiai blokeliai
Akytbetonis
Silikatinis blokelis
Fasado apdaila
Klinkerio plytelės
Mediena
Dekoratyvinis Tinkas
Kambariai
Vonios : 2
Tualetai : 0
Miegamieji : 3
Katilinė
Tambūras
Sandėliukas
Pamatas
Gręžtinis
Plokštuminis
Iš blokelių
Juostinis
Architektūros stilius
Šiuolaikinis
European
Modernus
Pereinamasis
Išorinės savybės
Balkonas
Dviaukštė veranda
Dengta veranda gale
Vidinės savybės
Židinys svetainėje
Antro aukšto pagrindinis miegamasis
Sugrupuoti miegamieji
Uždara virtuvė
Didelė svetainė (>25 m²)
Didelė virtuvė (>12 m²)
Virtuvė ir valgomasis
Valgomojo zona
Garažas
9: 35 m²
Automobiliai: 2
Pristatytas
Priekinis įvažiavimas
Stogas
Stogo plotas: 0.00m²
Vienšlaitis
Stogo nuolydis : 9.5º (±2º)
Architektas
NPS projektai NPS projektai Architektų biuras country with code lt Lithuania
country with code lt Lithuania
Šiauliai City Municipality, Šiauliai, Tilžės g. 151 (II aukštas)
Projekto paketas

Namų projektas gali neatitikti jūsų šalies statybos taisyklių.

Norėdami užtikrinti, kad namo projektas atitiktų jūsų šalies statybos taisykles, turite įsigyti skaitmeninę koncepciją iš projekto autoriaus ir pasirinkti žemiau vietinį architektą statybos dokumentacijai parengti.

Skaitmeninė koncepcija plan_plan_cad_owner_country_desc
$1260
Tarpinė suma