Statybos dokumentacija parengiama šioms šalims:
Projektas
96016R
Baigta
Pasirašyta ir antspauduota
SK Prieinamas
Pagrindiniai parametrai
216
Bendrasis plotas m²
2 + 0
Vonios kambariai + Tualetai
3 + 1
Miegamieji + Darbo kambarys
2
Automobiliai
111

222

Norite ką nors pakeisti?

Šį namo projektą galima pritaikyti prie jūsų šeimos gyvenimo būdo ir sklypo ypatybių.

Šio projekto architektas nėra iš tavo šalies.

Jei norite pakeisti šį namo projektą, turite du pasirinkimus:

1. Pakeitimai, kuriuos atlieka originalus architektas: Dirbkite tiesiogiai su originaliu architektu, kad įsigytumėte pakeistą skaitmeninę koncepciją, tada perduokite ją savo vietiniam architektui, kad užsakytumėte statybos dokumentaciją.

2. Pakeitimai, kuriuos atlieka jūsų vietinis architektas: Įsigykite skaitmeninę koncepciją tokia, kokia ji yra, dirbkite su savo vietiniu architektu atlikdami pakeitimus ir tada tęskite statybos dokumentacijos užsakymą.

Aukštų planai
Pirmas Aukštas
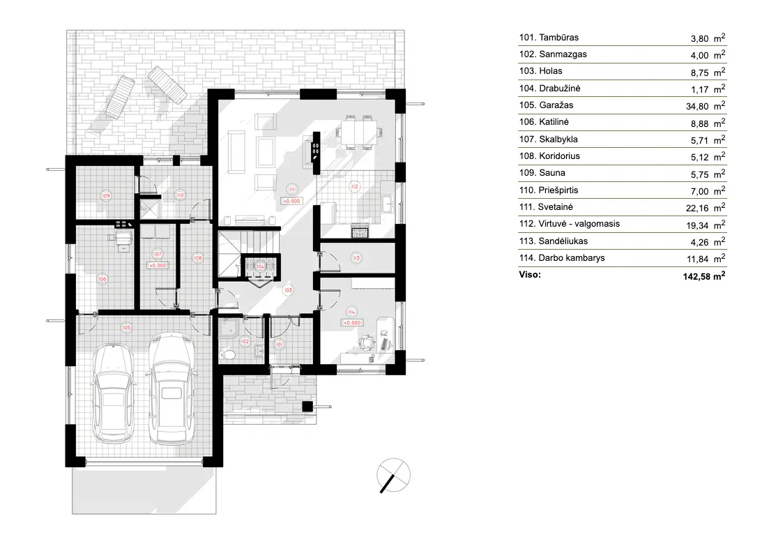
96016R - Pirmas Aukštas
Antras Aukštas
96016R - Antras Aukštas
Visos specifikacijos
Plotas
Pirmas aukštas (be garažo): 108 m²
Antras aukštas: 73 m²
Trečias aukštas: 0 m²
Rūsys: 0 m²
Gyvenamasis plotas: 97 m²
Užstatymo plotas: 181 m²
Bendrasis plotas: 216 m²
Matmenys
Gylis 15.92 m
Plotis 14.32 m
Aukštis 7.82 m
Medžiagos
Karkasinis
Keraminiai blokeliai
Akytbetonis
Silikatinis blokelis
Fasado apdaila
Klinkerio plytelės
Dekoratyvinis Tinkas
Kambariai
Vonios : 2
Tualetai : 0
Miegamieji : 3
Katilinė
Skalbykla
Tambūras
Darbo kambarys
Pirtis
Sandėliukas
Drabužinė miegamajame
Pamatas
Gręžtinis
Plokštuminis
Iš blokelių
Juostinis
Architektūros stilius
European
Tradicinis
Išorinės savybės
Medinė terasa
Vidinės savybės
Skalbykla pirmame aukšte
Židinys svetainėje
Antro aukšto pagrindinis miegamasis
Sugrupuoti miegamieji
Uždara virtuvė
Didelė virtuvė (>12 m²)
Virtuvė ir valgomasis
Sandėliukas
Valgomojo zona
Garažas
9: 35 m²
Automobiliai: 2
Pristatytas
Priekinis įvažiavimas
Pratęstas į priekį
Stogas
Stogo plotas: 0.00m²
Vienšlaitis
Dvigubas Vienšlaitis
Kraigas statmenas gatvei
Stogo nuolydis : 14º (±2º)
Architektas
NPS projektai NPS projektai Architektų biuras country with code lt Lithuania
country with code lt Lithuania
Šiauliai City Municipality, Šiauliai, Tilžės g. 151 (II aukštas)
Projekto paketas

Namų projektas gali neatitikti jūsų šalies statybos taisyklių.

Norėdami užtikrinti, kad namo projektas atitiktų jūsų šalies statybos taisykles, turite įsigyti skaitmeninę koncepciją iš projekto autoriaus ir pasirinkti žemiau vietinį architektą statybos dokumentacijai parengti.

Skaitmeninė koncepcija plan_plan_cad_owner_country_desc
$1260
Tarpinė suma